• ART
  • GEOHYSTERIA
  • architectural design work
  • About Me + resume
  • Vertical Farm for Boston, MA, 2019
  • Sick Architecture - Prototype/Experiment, 2019
  • Shadowbox, 2019
  • Community Arts Center for Charlotte, NC, 2019
  • Arduino Fighter Robot, 2018
  • Wilson Robot, 2018
  • ICAA Work 2018- NYC
  • Basket Building for Seattle, WA, 2018
  • Fractured Bath House, 2018
  • Fractured Campus- Concept Project, 2018
  • Kimbell Art Museum Wall Section, 2017
  • Lighting & Scenic Design
  • Indian Dance Festival- Lighting Design
  • UNCC Spring Dance Concert- Lighting & Stage Design
Contact
Sara Lafrance
BA, Architecture, UNCC 2020
  • ART
  • GEOHYSTERIA
  • architectural design work
  • About Me + resume
  • Vertical Farm for Boston, MA, 2019
  • Sick Architecture - Prototype/Experiment, 2019
  • Shadowbox, 2019
  • Community Arts Center for Charlotte, NC, 2019
  • Arduino Fighter Robot, 2018
  • Wilson Robot, 2018
  • ICAA Work 2018- NYC
  • Basket Building for Seattle, WA, 2018
  • Fractured Bath House, 2018
  • Fractured Campus- Concept Project, 2018
  • Kimbell Art Museum Wall Section, 2017
  • Lighting & Scenic Design
  • Indian Dance Festival- Lighting Design
  • UNCC Spring Dance Concert- Lighting & Stage Design
Contact

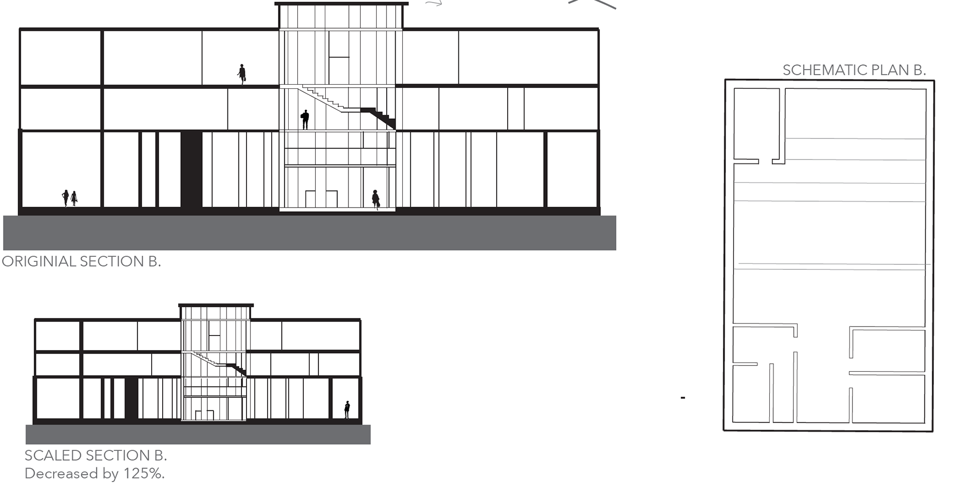
Fractured Campus- Concept Project, 2018

Spring 2nd year. Studio: Rachel Dickey. Studies in intentionally "fractured" campus architecture.
↑Back to Top
Powered by Adobe Portfolio